Lizardi Town Homes Before and After Photos

Exterior Views

BEFORE: Prytania Street View

BEFORE: Prytania Street View

BEFORE: Corner View

BEFORE: Corner View

BEFORE: Atrium space

BEFORE: Atrium space

AFTER: Prytania Street View

AFTER: Prytania Street View

AFTER: Corner View

AFTER: Corner View

AFTER: Courtyard space

AFTER: Courtyard space


Interior Views

Historic Interior Stair

Historic Interior Stair

BEFORE: Corner space on second floor

BEFORE: Corner space on second floor

BEFORE: Corner space on second floor

BEFORE: Corner space on second floor

BEFORE: Corner space on the second floor

BEFORE: Corner space on the second floor

BEFORE: Corner space on the second floor

BEFORE: Corner space on the second floor

BEFORE: Storage space

BEFORE: Storage space

BEFORE: Storage space

BEFORE: Storage space

BEFORE: Storage space

BEFORE: Storage space

BEFORE: Storage space

BEFORE: Storage space

BEFORE: View from storage space looking into atrium addition

BEFORE: View from storage space looking into atrium addition

BEFORE: Loft area used for storage

BEFORE: Loft area used for storage

BEFORE: Loft area used for storage

BEFORE: Loft area used for storage

Stair for Corner Apartment

Stair for Corner Apartment

AFTER: Corner Apartment, Kitchen View

AFTER: Corner Apartment, Kitchen View

AFTER: Corner Apartment, Kitchen View

BEFORE: Corner Apartment, Bedroom View

AFTER: Kitchen View

AFTER: Parlor View

AFTER: Parlor View

AFTER: Parlor and Kitchen View

AFTER: Bedroom View

AFTER: View from bedroom looking over courtyard

AFTER: Loft area used for bedrooms

AFTER: Loft area used for bedrooms

AFTER: Loft area used for bedrooms

AFTER: Loft area used for bedrooms


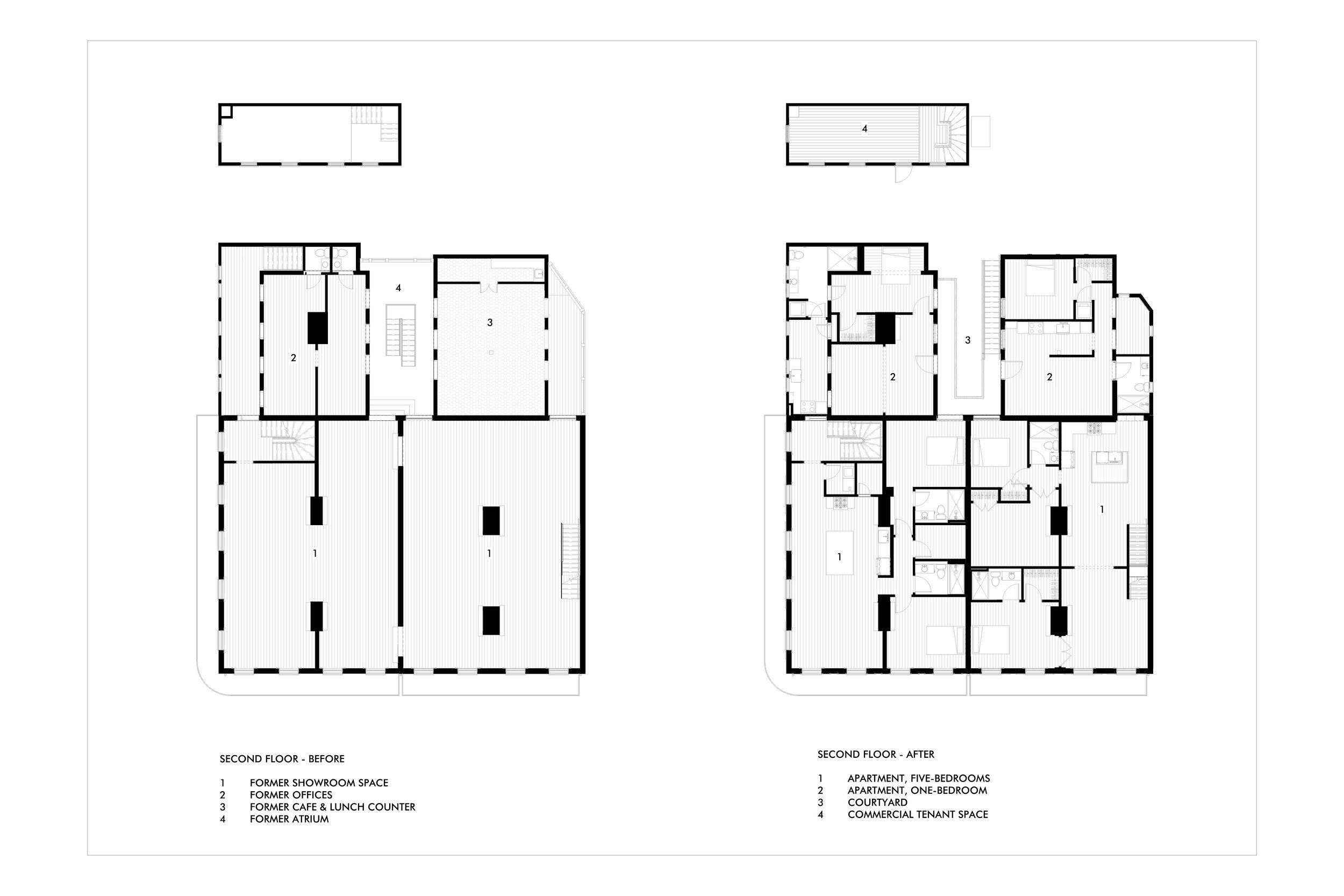
Floor plans

18009_1600PRYTANIA_PRESS RELEASE PLANS1r.jpg
18009_1600PRYTANIA_PRESS RELEASE PLANS2r.jpg

More Before-and-After Photos

030_1600x1067_mls_1600x1067.jpg
Before: Unit D used to be home to Halpern’s cafe.

Before: Unit D used to be home to Halpern’s cafe.

After: The new Unit D kitchen and living area with french doors and shelving made of cypress.

After: The new Unit D kitchen and living area with french doors and shelving made of cypress.

BEFORE: This service wing porch was enclosed at some point in history and turned into the offices for the furniture store.

BEFORE: This service wing porch was enclosed at some point in history and turned into the offices for the furniture store.

AFTER: One-bedroom apartment with bright and sunny kitchen and bathroom on the once-porch of the service wing.

AFTER: One-bedroom apartment with bright and sunny kitchen and bathroom on the once-porch of the service wing.

AFTER: One-bedroom apartment in the old service wing of the former Greek Revival Townhouse, home to the Lizardi Brothers

AFTER: One-bedroom apartment in the old service wing of the former Greek Revival Townhouse, home to the Lizardi Brothers

AFTER: The two one-bedroom apartment entries face each other, helping the neighbors create a new found friendship.

AFTER: The two one-bedroom apartment entries face each other, helping the neighbors create a new found friendship.

BEFORE: old atrium that connected the two buildings built around 1970

BEFORE: old atrium that connected the two buildings built around 1970

AFTER: opened atrium, now courtyard space

AFTER: opened atrium, now courtyard space

AFTER: Another angle from the opened atrium (now courtyard).

AFTER: Another angle from the opened atrium (now courtyard).